New buildings at the Kärcher complex in Winnenden
Ausgestattet mit: LS 990 in Alpinweiß, WG800
Alfred Kärcher GmbH & Co. KG was established in 1935 in Stuttgart-Bad Cannstatt by Alfred Kärcher (1901–1959). Four years later, the company relocated to Winnenden, where it is still headquartered. The company is best known for its yellow cleaning equipment: With the invention of the first European hot water, high-pressure cleaner in 1950, the foundation was laid for the company’s subsequent success. Today, Kärcher is the world’s leading specialist cleaning company. After Alfred Kärcher’s death in 1959, his wife Irene was in charge of the company’s fortunes until her own passing in 1989. Kärcher remains a family business to this day.
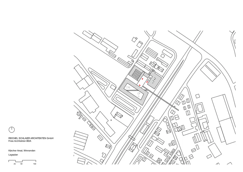
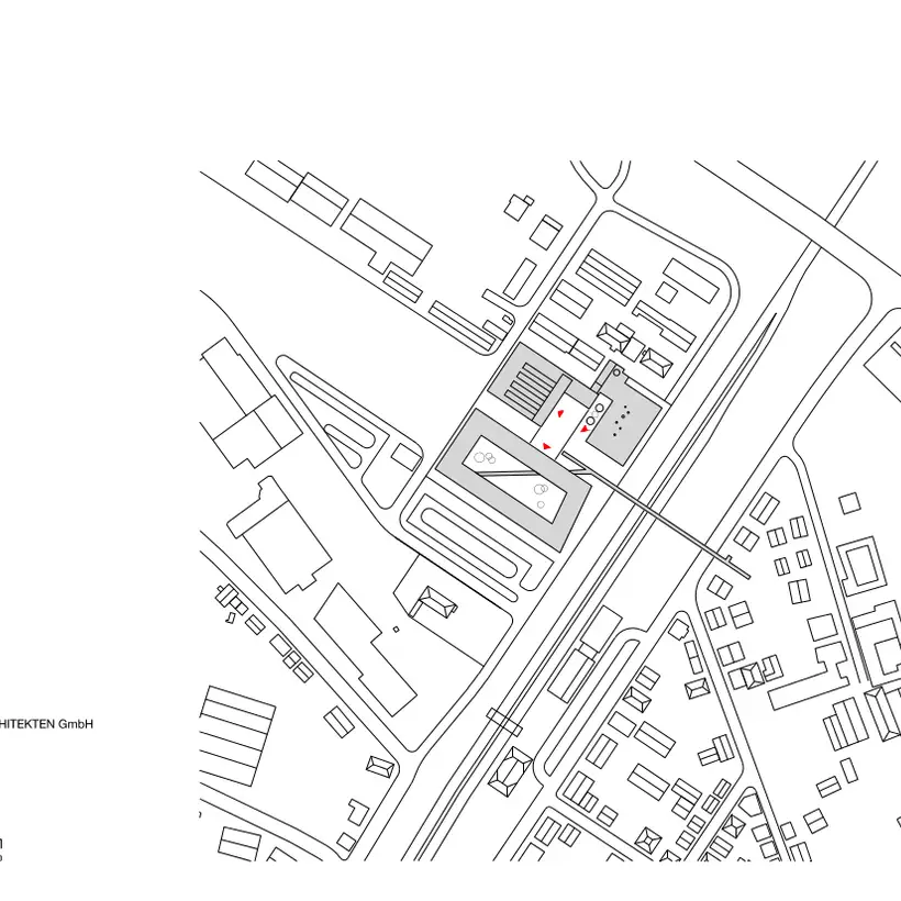
In recent years, this global cleaning equipment company has experienced rapid growth. Space for staff was shrinking, leading Kärcher to acquire the 130,000 square metre grounds of a former brickworks for future expansions. To this end, the company held an international design competition at the end of 2012 and subsequently awarded the contract to Reichel Schlaier Architekten of Stuttgart for their winning design.
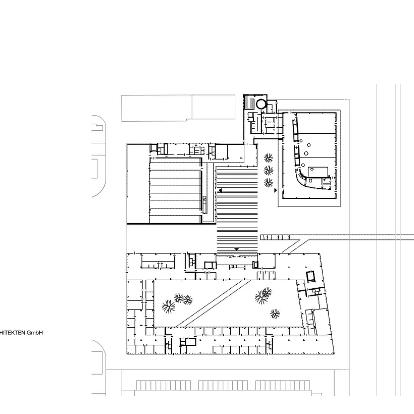
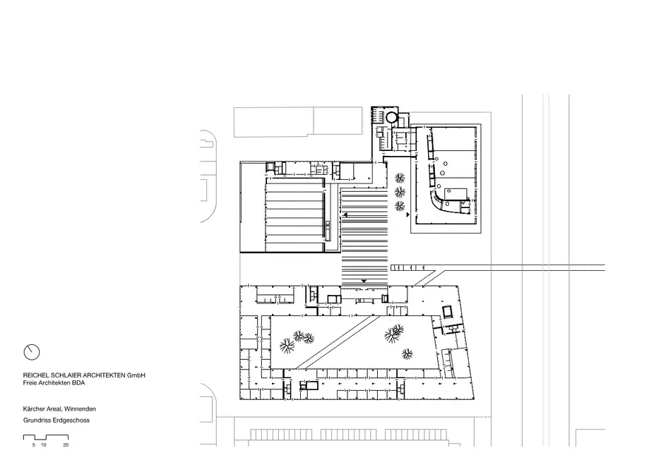
The area around the company is exceptionally diverse and includes single-family homes, industrial buildings, shopping centres, a rail yard and car parks. At the same time, the existing buildings, with only two to four storeys, are all limited in height. The Stuttgart architects proposed constructing three buildings with separate uses for administration, events and presentations as well as a footbridge. The advantage of dividing the buildings into functions is that it creates a single space devoted to meetings and work, another to exchanges and conferences with customers and a third space for trade fairs and exhibitions. The open plaza created by the new buildings creates a link between the visitor and customer centre, the auditorium and the office building, while also serving as the striking centrepiece of the new complex.
New office building
The newly constructed footbridge joins the existing Kärcher facilities with the plaza and the new office building. Next to the other buildings, the transparent façade appears somewhat reserved. Inside, however, lighting elements in the company colour of yellow light the way. Office space for the staff has been laid out in rings around the inner courtyard, which allows natural lighting and ventilation of the rooms. Some 700 work stations have been created over the four floors of the new office building. Office space in the rectangular building has been arranged in a ring around a green courtyard. The building’s depth of just 13.5 metres facilitates uniform natural lighting and ventilation as well as the highly flexible usage of the building’s floor space. A cafeteria on the ground floor opens to the courtyard. Placing benches and tables under the warm glow of pendant lights has created a welcoming atmosphere and a place where employees can meet casually or join each other for lunch. A small foyer on the second floor serves as the entrance to the footbridge to the older facilities. By spanning the inner courtyard, the overhead crossing provides employees with a direct connection.
New auditorium
With its overhanging roof, the new auditorium can host events for up to 800 people in its foyer alone. The space can also be divided by movable partitions to create two or three smaller rooms. The spacious hall opens to the plaza and provides ample space for events. The upper part of the curved wall of the auditorium is decorated with a 50-metre long Kärcher motif, illuminated by a recessed lighting channel in the ceiling along its entirety. This motif endows the entire complex with a unifying company identity. The ceiling structure is covered by folds of sailcloth of different widths, which, besides improving acoustics, cool and heat the auditorium. Lighting and sound elements are arranged linearly within the gaps between the folds. The curved wall is also lined with elements for improving acoustics in the hall.
New visitor and customer centre
The exhibition and seminar rooms are situated in the new constructed visitor and customer centre. With its façade of exposed brickwork, it harkens back to the historical brickyard, and offers a clear contrast to the fully glazed office and event buildings. Visitors enter building through an L-shaped glass passage running along the plaza. On the north side of the plaza, staff can visit a two-storey café, where they can exchange the latest news with colleagues or meet with customers. To the west, a foyer leads to the presentation and exhibition area, while the floor above – supported by a lightweight steel construction that seemingly floats above the walls – accommodates a display area for prizes and awards won by the company. The central exhibition space is accessed directly from the foyer. With 800 square metres of space and 8-metre high ceilings, the hall is also used for trade shows. A sheltered area just outside the hall is used to present products such as power sweepers. The conference and seminar rooms are situated to the north side of the hall.
Design of the plaza
A plaza has been created between the three new buildings, yet remains visually restrained by its uniform, dark grey paving. This central area is demarcated by wide strips of bright, precast concrete. The outdoor seating of the café in the visitor and customer centre, the exhibition and presentation area and the gathering place for staff can all be found here.
New connecting bridge
A large lattice truss serves as the footbridge connecting the new complex with the original company facilities. The truss is covered with industrial glass to protect it from the elements.
The buildings are outfitted with the classic LS 990 range of switches in white from JUNG. The timeless design of their slim frames is a perfect fit for the surroundings. The splash-proof WG 800 system – made of weatherproof and unbreakable thermoplastic with the highest UV protection possible – sets the standard for professional electrical installations by providing plenty of space for wiring.
Place |
Winnenden, Germany |
|---|---|
Design |
|
General contractor |
Alfred Kärcher GmbH & Co. KG |
Architecture |
Reichel Schlaier Architekten GmbH |
Installer |
Nägele Stuttgart GmbH |
Installer |
F&E Elektroanlagen GmbH |
Electrical Consultant |
Raible + Partner GmbH & Co. KG |
Used designs und technologies
LS 990 in white
Thanks to its high quality and clear shape, the LS 990 switch range has already proved its worth for about 50 years. The classic form of this switch with its narrow frame fits harmoniously into any surroundings. Purist elegance in thermosetting plastic or genuine metal lend this series a touch of class. A wide variety of applications are possible thanks to the wide functional spectrum. Thus, architecturally demanding visions can be consistently put into practice. The single to fivefold frames can be fitted horizontally or vertically.
WG 800
Plenty of space for the wiring Fully perfected in terms of form and function, weather-proof and largely UV-resistant, and made of unbreakable thermosettting plastic: The WG 800 that is also protected against sprayed water can be illuminated and lettered throughout and sets new standards for professional electrical installation work through the ample amount of space allowed for the wiring.