0
Architektams

Apartment Providència, Barcelona | Spain

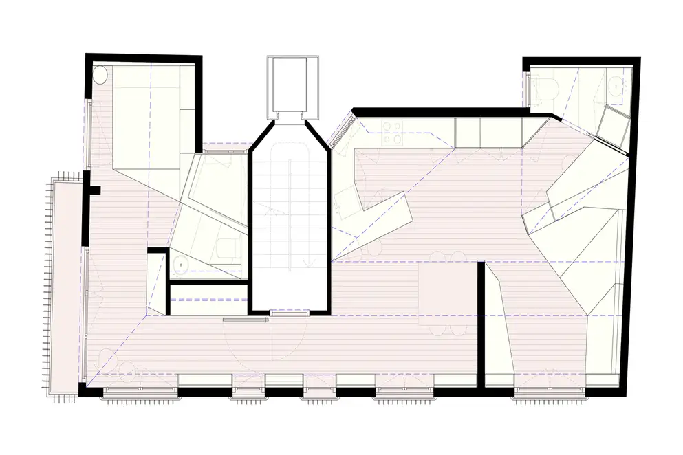
The apartment Providència lies in the street of the same name in the Barcelona district of Gràcia. Here, Aureli Mora and Omar Ornaque, the creative brains behind the AMOO firm of architects, transformed a dark attic flat with nooks and crannies into a light and friendly loft. The multi-floor apartment building itself was built in the late 1950s. The penthouse apartment of only just 60 m² originally contained a large living-dining room alongside four narrow bedrooms, the structure of which has been completely eliminated.

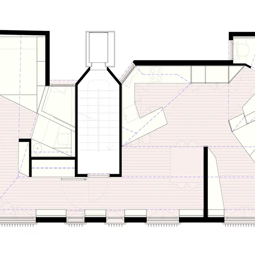
In their place an integrated living area has arisen completely according to the wishes of the owner – with a large bedroom and an open bathroom including dressing room as well as a modern living, kitchen and work area. The stairway, and thus the entrance to the apartment, positioned in the centre of the floor plan provides natural zoning between the more private and the more public parts of the apartment. The small floor area and the many sloping ceilings made numerous custom solutions necessary. For example, virtually all the furniture was specially made and implemented as fixed installations. Even the bed, sofa and desk are integrated into the flowing interior. The architects have allocated various pastel colours to the individual functions of the integrated furniture folding like a Leporello. The living and work area is dipped in a soft pistachio green, while the kitchen area that joins seamlessly is kept in light pink. In the bedroom and bathroom, white surfaces dominate.

A distinctive detail in the apartment is provided by an ionic pillar in pink marble reduced to its silhouette. It decorates the end of a structural wall that could not be removed and symbolically connects old and new. Small but subtle details provide accents beyond that – black taps in the kitchen and bathroom for example. The switches and sockets chosen from the LS 990 range from JUNG in the elegant matt graphite black design with such a good feel to the touch also provide harmonious highlights within the flowing colour and room concept.

Used designs und technologies

LS 990 in matt graphite black

LS 990 in matt graphite black

The new black for impressive scenes.

LS 990