Apartment Leipziger Straße, Berlin | Germany
The eight powerful, high-rise residential buildings along the Leipziger Straße in the Mitte district of Berlin – each of which were erected in pairs – come from the glory days of the GDR. They were a response to the high-rise Springer building in the west and today it is hard to imagine the cityscape without them. At the same time their reputation repeatedly alternates between fame and notoriety. Currently, however, this group of buildings is really hip. Affordable rents in a prime central location almost allow you to forget the rugged charm of the 23 to 25-storey prefabricated concrete buildings and the noise of the busy multi-lane Magistrale at their feet. So today the buildings are occupied by a young, urban clientele. And the architect Christopher Sitzler also lives and works there. His home measures almost 100 square metres.
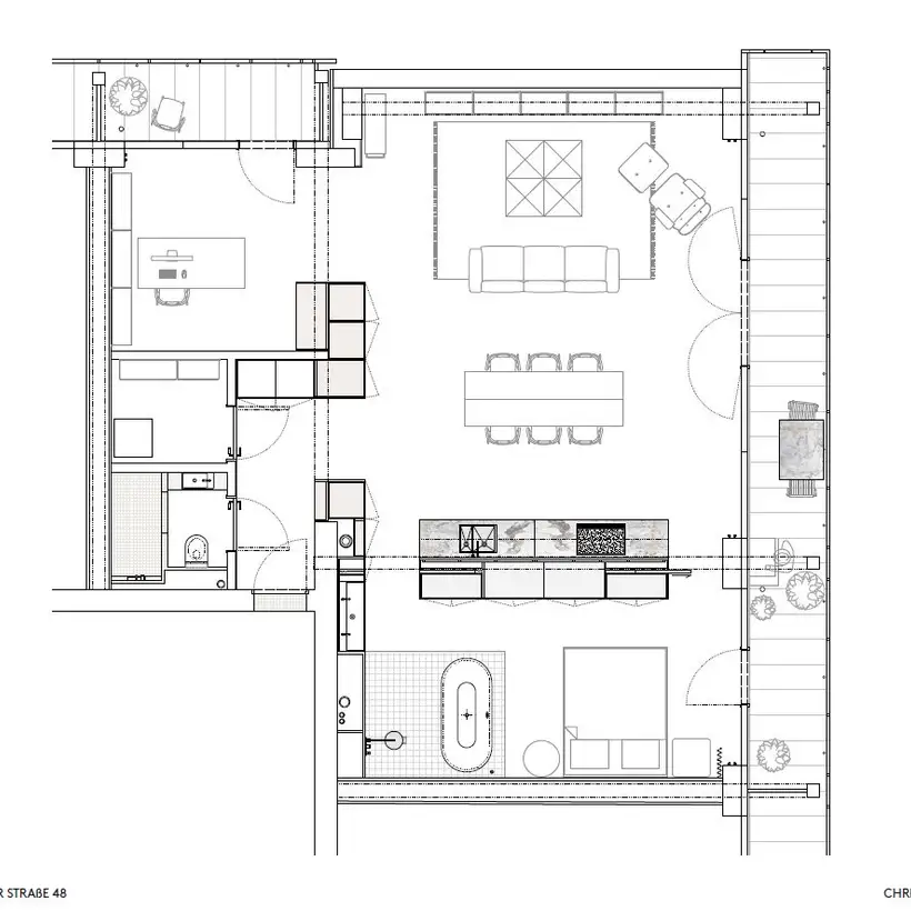
There is nothing left of the original layout and spatial design of this apartment. Sitzler has radically stripped the flat down to its supporting structure. Some mighty concrete beams have come to light in the process. They now follow the new floor plan lines, supported by a few wall fixtures and space-creating cupboard elements. In the entrance area a storage room has been created along with a small bathroom with WC. The most space in the floor plan is taken up with the living and eating area with its open-plan kitchen. It extends seamlessly round the corner into the workroom. The movable furniture on the other hand is almost entirely made up of classic pieces by Dieter Rams, Hans Wegner, Le Corbusier and Fritz Haller. The architect’s private retreat – a combined bedroom and bathroom – is separated by two sliding doors. As well as the bed, the bathtub and shower is set out on a platform with square, white, swimming-pool tiles. Sitzler has successfully made a real statement with this. The open wet area consistently carries forward the stern and minimalist design of the apartment.
The architect has skilfully paired his neo-brutalism with select materials, however, and high-quality details. The worktop and back wall of the kitchen units are of white marble, while the warm, bright oak fixtures form a sensitive contrast to the other exposed concrete surfaces. Last but not least, the switches and sockets from the JUNG LS 990 range provide visual and tactile features in aluminium. Where no flush-mounted installations were possible, or the nature of the furnishings did not allow this – on the exposed concrete walls, for example –Sitzler opted for the corresponding surface-mounted LS Cube model. This has resulted in a totally contemporary, urban interior that is wholly suited to the lifestyle of this home builder and architect.
Plaats |
Berlin, Duitsland |
|---|---|
Technologie |
|
Design |
|
Architectuur |
Christopher Sitzler \ Architekt |
Gebruikte designs en technologiën.
Plug & Light
Met Plug & Light wordt lichtvormgeving in binnenruimtes opnieuw gedefinieerd. Voor perfect dimbaar ledlicht in passend schakelaar-design.
LS 990 Aluminium
Het originele LS 990 in echt aluminium staat voor koele elegantie in een tijdloze, vierkante vormgeving. In dezer uitvoering geeft hij de elektrotechnische installatie een bijzondere puristische uitstraling.
LS 990 opbouw
Het tijdloze LS 990 als opbouwvariant staat goed op beton of natuursteen. De opbouwkappen hebben al een aangespoten designraam.