Villa Bôrik, Žilina | Slovakia
The unusual looking house from PLURAL is situated in a typical residential area characterised by detached houses south of the centre of Žilina. Where previously a single-storey building stood, there is space for three floors with a total of 260 m² floor space for a family.
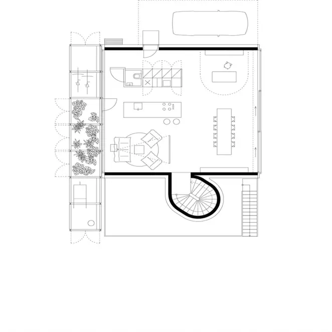
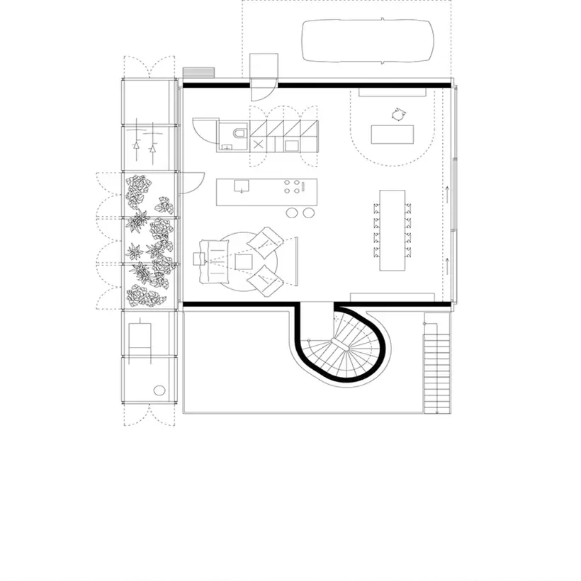
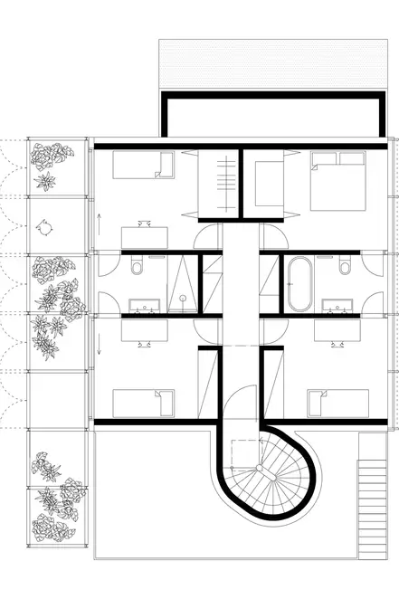
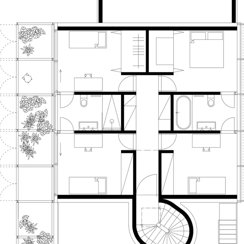
Each of the three virtually square floors – one underground and two above-ground levels – display a different spatial organisation. The Plan Libre enables different use possibilities and configurations for the ground floor, currently used as the kitchen, dining and living area. The east-west alignment of the property is fully exploited here, with different light moods captured in the course of a day. The upper floor has been kept significantly more compact, and with a clever arrangement accommodates four bedrooms and two bathrooms. The access to the bathrooms from the rooms along the facade creates a minimal corridor area while at the same time giving maximum use of the surfaces with storage space. The central service area with the entrances to the individual rooms is provided with daylight by a rooflight. The underground level with a courtyard and sauna serves as a usage-neutral area that can be used as needed. The flexibility of the internal spaces is only possible because they are accessible via a cylindrical stairway sculpture built outside the building that itself contributes to the supporting structure of the house. A further extension of the cubic form is the facade extending on the west side that functions as a filter between street and interior and integrates an enclosed front garden and storage spaces.
The switch range of the classic JUNG LS 990 in white continues the design concept in the family home consistently with its linearity and functional elegance.
Place |
Žilina, Slovakia |
|---|---|
Design |
|
Architecture |
PLURAL |
Used designs und technologies
LS 990 in white
Thanks to its high quality and clear shape, the LS 990 switch range has already proved its worth for about 50 years. The classic form of this switch with its narrow frame fits harmoniously into any surroundings. Purist elegance in thermosetting plastic or genuine metal lend this series a touch of class. A wide variety of applications are possible thanks to the wide functional spectrum. Thus, architecturally demanding visions can be consistently put into practice. The single to fivefold frames can be fitted horizontally or vertically.